加载中...
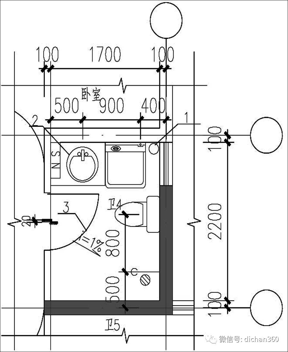
原卫生间平面图修改后卫生间平面图问题点:1,给水立管位置紧靠窗,既不

原卫生间平面图修改后卫生间平面图问题点:1,给水立管位置紧靠窗,既不

图片尺寸 969x1182
上传时间 2026-03-22 20:00:40

图片链接

缩略图
原图
外链

相关图片

求助各位小卫生间三分离布局怎么选

求助各位小卫生间三分离布局怎么选

310㎡卫生间如何装修16张卫生间装修布局图科学实用又人性化

310㎡卫生间如何装修16张卫生间装修布局图科学实用又人性化

3平米的卫生间怎么设计

3平米的卫生间怎么设计

小面积卫生间,如何布置更好用?

小面积卫生间,如何布置更好用?

3米宽1.7米的卫生间平面布置图

3米宽1.7米的卫生间平面布置图

卫生间平面图

卫生间平面图

平面图中的卫生间需要绘制出来吗圈的部分应该用什么来绘制墙还是其他

平面图中的卫生间需要绘制出来吗圈的部分应该用什么来绘制墙还是其他

卫生间平面

卫生间平面

修改后卫生间平面图问题点:1,无前室的卫生间门不应直接开向厨房

修改后卫生间平面图问题点:1,无前室的卫生间门不应直接开向厨房

1.2*1.5米卫生间设计,1.2*1.5米卫生间设计(1.5×2.

1.2*1.5米卫生间设计,1.2*1.5米卫生间设计(1.5×2.

随机推荐

女短发发型图片大全2021减龄(剪短发真时尚,100多款任你挑选) | 文案

女短发发型图片大全2021减龄(剪短发真时尚,100多款任你挑选) | 文案

花键轴 花键套 齿轮 传动轴 机械零件配件洛阳大型车床厂家非标定制

花键轴 花键套 齿轮 传动轴 机械零件配件洛阳大型车床厂家非标定制

硬三天一般多少钱不看后悔到底多少钱

硬三天一般多少钱不看后悔到底多少钱

可爱动漫妹子表情包-我错了下次还这样做

可爱动漫妹子表情包-我错了下次还这样做

女友视角刘昊然第二弹

女友视角刘昊然第二弹

《19天》展正希和见一的手机壁纸图片8张(4)

《19天》展正希和见一的手机壁纸图片8张(4)

王雪涛大师花鸟画秘笈——青蛙

王雪涛大师花鸟画秘笈——青蛙

动漫情侣头像比心_微信头像图片大全

动漫情侣头像比心_微信头像图片大全

美术绘画之速写,体块理解与认识,及速写绘画思路

美术绘画之速写,体块理解与认识,及速写绘画思路

zslk102cdr中式镂空装饰雕刻图案制作eps中式镂空花格雕刻修图中式

zslk102cdr中式镂空装饰雕刻图案制作eps中式镂空花格雕刻修图中式